av成人在线观看I黄污视频网站大全I69视频网站I亚洲在线激情I免费aa大片I香蕉视频18

當前位置:網站首頁 > GLD系列帶式(甲帶)給料機 > 雙向帶式(甲帶)給料機
雙向帶式(甲帶)給料機

雙向帶式(甲帶)給料機

產品簡介:雙向帶式(甲帶)給料機在訂貨時須給出從料倉口中心到卸料口的距離以及給料量和電壓等級等參數,以便進行制作。雙向帶式(甲帶)給料機有兩個出料口,為了實現物料向兩個方向移動并適用于一個料倉,在不同時間分別向兩…
咨詢熱線:15376565688
產品詳情

雙向帶式(甲帶)給料機在訂貨時須給出從料倉口中心到卸料口的距離以及給料量和電壓等級等參數,以便進行制作。雙向帶式(甲帶)給料機有兩個出料口,為了實現物料向兩個方向移動并適用于一個料倉,在不同時間分別向兩個承接裝置給料的工況,采用的驅動裝置的正反轉可以帶動甲帶的正反轉。

在訂貨時須給出從料倉口中心到卸料口的距離以及給料量和電壓等級等參數,以便進行制作

在訂貨時須給出從料倉口中心到卸料口的距離以及給料量和電壓等級等參數,以便進行制作

雙向帶式(甲帶)給料機的優點:

1、運行平穩可靠;

2、設備故障率低;

3、維護量小且維護方便;

4、噪音小且使用壽命長。

雙向帶式(甲帶)給料機型號說明:

雙向帶式(甲帶)給料機的特點:

1、運行功率小;

2、重量輕、噪音小;

3、給料量大且給料量穩定;

4、部件通用性強、調整方便。

雙向帶式(甲帶)給料機技術參數:


雙向帶式(甲帶)給料機的固定方式:

給料機有兩種固定方式,懸掛式和支撐式,為了維修方便,推薦采用懸掛式。采用懸掛式時,連接段本身可以作為受料端的懸掛結構,要求現場預埋卸料端懸掛鋼板或吊環。卸料口上部的角鋼可以承受懸掛力,現場應把懸掛槽鋼、角鋼或其他結構和此角鋼焊接或用螺栓連接在一起;采用支撐式時,用戶可以從給料機的下面支撐,給料機底部的兩件20#的槽鋼可以承重,用戶在下面裝設的的支撐件和此槽鋼可以用聯接件聯接,也可以焊接。

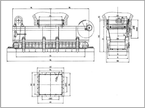
雙向帶式(甲帶)給料機的外形及連接尺寸:


點擊下載全部文件:https://pan.baidu.com/s/1UtAgJmugPhu2H9fNNJ1jHQ

客戶評論
驗證碼: 看不清楚?