av成人在线观看I黄污视频网站大全I69视频网站I亚洲在线激情I免费aa大片I香蕉视频18

當前位置:網站首頁 > GLD系列帶式(甲帶)給料機 > 防砸閥門帶式(甲帶)給料機
防砸閥門帶式(甲帶)給料機

防砸閥門帶式(甲帶)給料機

產品簡介:防砸閥門帶式(甲帶)給料機的閘門下增加了防砸閘門,當料倉中的大塊物料落下通過給料機時,首先了落在防砸閘門上,防砸閘門在物料的重力作用下打開,使物料經緩沖后落到甲帶上,甲帶對物料起再一次的緩沖作用。因此,…
咨詢熱線:15376565688
產品詳情

防砸閥門帶式(甲帶)給料機的閘門下增加了防砸閘門,當料倉中的大塊物料落下通過給料機時,首先了落在防砸閘門上,防砸閘門在物料的重力作用下打開,使物料經緩沖后落到甲帶上,甲帶對物料起再一次的緩沖作用。因此,防砸閥門帶式(甲帶)給料機有效防止了大塊物料砸傷甲帶、皮帶、托輥。

防砸閥門帶式(甲帶)給料機的優勢:

1、使用專利二維柔性甲帶,提高了給料機的耐砸、防斷裂、重載啟動等性能。

2、使用專利防打滑膠帶,克服了膠帶工作中的打滑、跑偏問題。

3、使用專利緩沖托輥,增強了抗重砸、防水塵、防銹蝕能力。


防砸閥門帶式(甲帶)給料機型號說明:


防砸閥門帶式(甲帶)給料機的特點:

1、給料量大、運行功率小、節能、環保。

2、調整方便有手動或變頻無級調速。

3、運行平穩、噪音小、保護環境。

4、磨損小、維修量少、安裝維修簡便、使用壽命長。

5、零部件通用性強,安裝、維修簡便。


防砸閥門帶式(甲帶)給料機技術參數:


防砸閥門帶式(甲帶)給料機的調試說明:

給料量主要靠調整給料機運行速度來調整:如為手動無級變速機,務必在給料機運行時調節變速機調節手柄,如為變頻器則需按隨機說明書要求,設定變頻器運行參數改變運行速度,達到所需給料量。


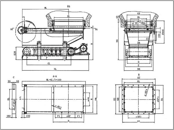
防砸閥門帶式(甲帶)給料機的外形及連接尺寸:


點擊下載全部文件:https://pan.baidu.com/s/1UtAgJmugPhu2H9fNNJ1jHQ

客戶評論
驗證碼: 看不清楚?