av成人在线观看I黄污视频网站大全I69视频网站I亚洲在线激情I免费aa大片I香蕉视频18

當前位置:網站首頁 > GLD系列帶式(甲帶)給料機 > 自動破拱給料機
自動破拱給料機

自動破拱給料機

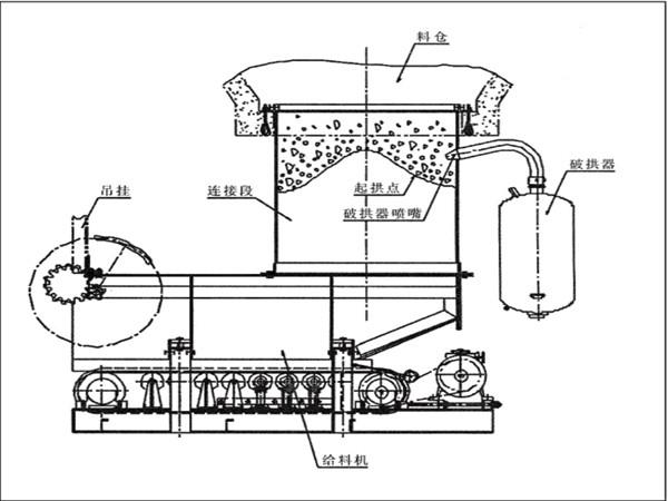
產品簡介:自動破拱給料機為了防止在給料機距離倉口較高的時候,連接段內的物料壓實粘結成拱或粘壁,使物料不能從連接段內排出或減少連接段的有效容量,因此采用了在連接段上安裝PF系列破拱器。自動破拱給料機利用壓縮空氣時瞬間…
咨詢熱線:15376565688
產品詳情

自動破拱給料機為了防止在給料機距離倉口較高的時候,連接段內的物料壓實粘結成拱或粘壁,使物料不能從連接段內排出或減少連接段的有效容量,因此采用了在連接段上安裝PF系列破拱器。自動破拱給料機利用壓縮空氣時瞬間產生的爆破力,對物料產生爆破、切割效應,以達到良好的疏通效果。

 防止在給料機距離倉口較高的時候,連接段內的物料壓實粘結成拱或粘壁

防止在給料機距離倉口較高的時候,連接段內的物料壓實粘結成拱或粘壁

自動破拱給料機的優勢:

1、給料量大、運行功率小、節能、環保。

2、運行平穩、噪音小、保護環境。

3、磨損小、維修量少、安裝維修簡便、使用壽命長。

4、零部件通用性強,安裝、維修簡便。


自動破拱給料機型號說明:

自動破拱給料機的安裝說明:

給料機可整體安裝,也可分體安裝。整體安裝時,先將連接段安裝于倉料口,再將給料機整體吊裝與連接段用螺栓連接。對于外連接式連接段,也可先將連接段與給料機連接,再整體吊裝與料倉口連接。分體安裝時,先將連接段安裝在料倉口,再安裝可拆分的導料槽,然后安裝底架等其他部件。


自動破拱給料機外形示意圖:


自動破拱給料機的訂貨說明:

訂貨時按照自動破拱給料機型號說明,寫明給料機型號、數量及環境要求等。若以上型號不能滿足客戶要求,我公司將按照客戶提供的要求定做給料機。

點擊下載全部文件:https://pan.baidu.com/s/1UtAgJmugPhu2H9fNNJ1jHQ

客戶評論
驗證碼: 看不清楚?